garag21 2Беларусь г. Орша, ул. Московская 1А корпус 21
Назначение – гараж, склад, производство.
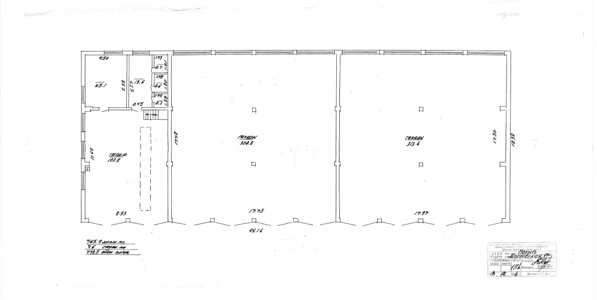
Площадь – 796.4 кв.м., в том числе административно-бытовые помещения – 30.5 кв.м.. Объем здания – 4896 куб.м. Год постройки – 1969. Высота потолков 6,1 метра
Описание конструкции:
Фундамент бетонный, полы бетонные, стены кирпичные, перекрытия – ж/бетонные плиты
Количество помещений - 8
Количество въездных ворот - 10
Вентиляция - естественная
Освещение – естественное, искусственное (электричество)
К зданию подведены инженерные сети: электричество, водопровод, канализация. Перед гаражем асфальтированная площадка для хранения транспорта площадью 2000 кв.метров.

Схема

 

Контакты
свяжитесь с нами наиболее удобным способом!

Адрес:

г. Орша, ул. Московская, д. 1А

Для связи:

+375295787874 Viber, WhatsApp
+375295757874 Viber, WhatsApp
+79679889242 Viber, WhatsApp.
depot1.by@gmail.com

Остались вопросы?
Задайте их нам и мы обязательно ответим!


Контакты

depot1.by@gmail.com
+375 29 676 78 74
г. Орша, ул. Московская, д. 1А

Разработка сайта Extrit
© 2022. Использование материалов сайта только с разрешения правообладателя